Projektverlauf Arztpraxis

Bilder Projektverlauf Arztpraxis

317.1812-23 Projekt Teampraxis 04.jpg
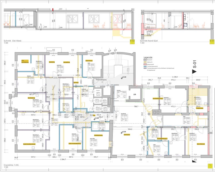
01 Einreichplan Teampraxis _ Layout.jpg
IMG_9759.jpg
317.23-1023 ProjektTeampraxis Rohbauarbeiten mit Abbruch.jpg
IMG_8854.jpg
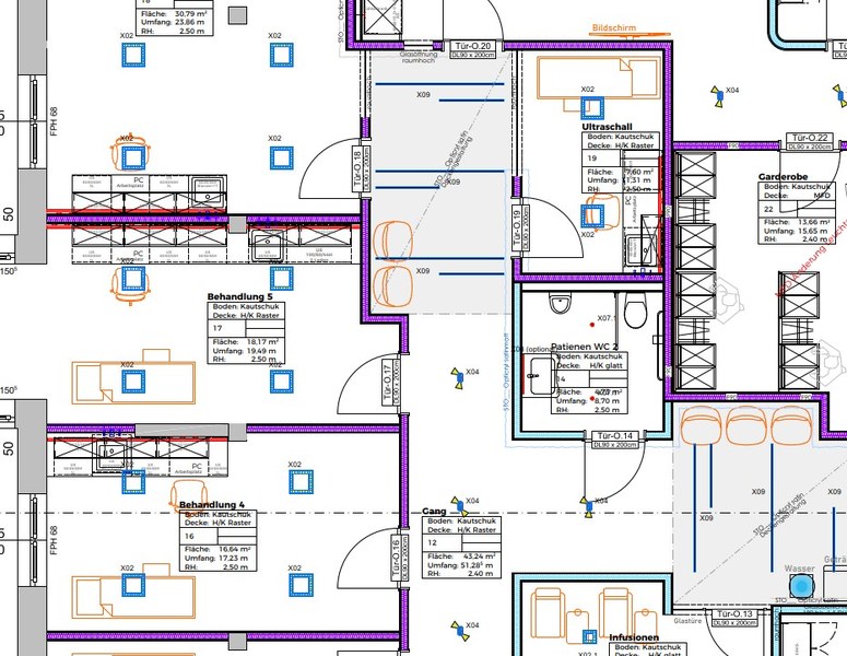
Ausschnitt Ausführungsplan.jpg
IMG_7541.jpg
317.RBMM Fluchtweg OG.jpg
Freigabe Miehl.jpg
IMG_9877.jpg
Ausschnitt Ausführungsplan2.jpg
IMG_2686.jpg
IMG_9760.jpg
SiGe-Plan Teampraxis Pö.jpg
IMG_8016.jpg
IMG_8014.jpg
317.ProjektTeampraxis_01.jpg
IMG_8087.jpg
IMG_9710.jpg
IMG_8088.jpg
X05__XAL__22_09__048-2720514F_048-2796318_002-90776_ds_Seite_1.jpg
IMG_7715.jpg
IMG_8497.jpg
IMG_8547.jpg
IMG_8849.jpg
IMG_8885.jpg
IMG_9311.jpg
IMG_8852.jpg
IMG_0737.jpg
IMG_0314.jpg
IMG_0314.jpg
IMG_0314.jpg
Projektverlauf – Von der Idee zur funktionalen, modernen Arztpraxis
Die Planung und Umsetzung einer Arztpraxis erfordert Präzision, klare Abläufe und ein tiefes Verständnis für medizinische Anforderungen. Wir begleiten das Projekt von der ersten Idee bis zur fertigen Inbetriebnahme.
 
1. Gespräch & Konzept
Im Erstgespräch klären wir Anforderungen, Abläufe und räumliche Bedürfnisse. Daraus entwickeln wir ein funktionales Praxis- und Raumkonzept, das medizinische Prozesse, Hygienevorgaben und Gestaltung harmonisch verbindet.
 
2. Einreichplanung
Wir erstellen alle notwendigen Unterlagen für Behörden und Genehmigungen und koordinieren die Abstimmung mit Fachplanern wie Elektro, HKLS oder Medizintechnik.
 
3. Material- & Ausstattungspräsentation
Materialien, Oberflächen, Beleuchtung und Möblierung werden abgestimmt und final festgelegt, um eine angenehme Atmosphäre und langlebige Qualität sicherzustellen.
 
4. Ausschreibungen & Vergaben
Wir erstellen Leistungsverzeichnisse, holen Angebote ein und begleiten die Vergabe der Gewerke. So gewährleisten wir Kostentransparenz und eine verlässliche Basis für die Umsetzung.
 
5. Bauzeitplan
Ein strukturierter Terminplan koordiniert alle Gewerke und sorgt für einen reibungslosen Ablauf während der gesamten Bauphase.
 
6. Abbruch & Umbau
Nach der Freimachung der Räumlichkeiten starten Abbruch, Umbau und Innenausbau. Wir koordinieren alle Gewerke, überwachen Qualität, Termine und Kosten und stellen sicher, dass alle medizinischen Anforderungen erfüllt werden.
 
7. Inbetriebnahme & Abrechnung
Nach Abschluss der Bauarbeiten erfolgt die technische und funktionale Inbetriebnahme der Praxis. Wir begleiten die Übergabe, erstellen eine transparente Schlussabrechnung und übergeben alle relevanten Unterlagen.
Loading...