Projektverlauf Bankstelle
Hier sehen Sie den Umbau einer Bankstelle vom Beginn bis zur Übergabe.
Projektverlauf einer Bankstelle – Präzise Planung, klare Abläufe, verlässliche Umsetzung
Die Realisierung einer Bankstelle erfordert strukturiertes Vorgehen, technische Kompetenz und eine enge Abstimmung mit allen Beteiligten. Unser Büro begleitet den gesamten Prozess – von der ersten Idee bis zur erfolgreichen Inbetriebnahme.
1. Erstgespräch & Bedarfserhebung
Am Beginn steht ein ausführliches Gespräch, in dem wir Anforderungen, Ziele und Rahmenbedingungen definieren. Wir analysieren bestehende Strukturen, klären funktionale Abläufe und schaffen damit die Basis für ein maßgeschneidertes Konzept.
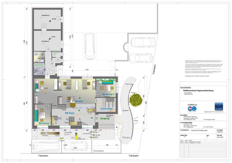
2. Konzeptentwicklung
Auf Grundlage der Bedarfsanalyse entwickeln wir ein durchdachtes Raum- und Funktionskonzept. Dabei berücksichtigen wir:
Die Realisierung einer Bankstelle erfordert strukturiertes Vorgehen, technische Kompetenz und eine enge Abstimmung mit allen Beteiligten. Unser Büro begleitet den gesamten Prozess – von der ersten Idee bis zur erfolgreichen Inbetriebnahme.
1. Erstgespräch & Bedarfserhebung
Am Beginn steht ein ausführliches Gespräch, in dem wir Anforderungen, Ziele und Rahmenbedingungen definieren. Wir analysieren bestehende Strukturen, klären funktionale Abläufe und schaffen damit die Basis für ein maßgeschneidertes Konzept.
2. Konzeptentwicklung
Auf Grundlage der Bedarfsanalyse entwickeln wir ein durchdachtes Raum- und Funktionskonzept. Dabei berücksichtigen wir:
- Kunden- und Mitarbeiterwege
- Sicherheitszonen
- Corporate-Design-Vorgaben
- technische und organisatorische Anforderungen
Das Konzept bildet den roten Faden für alle weiteren Planungsschritte.
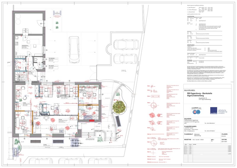
3. Einreichplanung
Wir erstellen alle erforderlichen Unterlagen für Behörden und Genehmigungsverfahren. Dazu gehören Pläne, technische Nachweise und Abstimmungen mit Fachplanern. Unser Ziel: eine reibungslose und zügige Genehmigung.
4. Material- & Ausstattungspräsentation
In dieser Phase konkretisieren wir das Erscheinungsbild der Bankstelle. Wir präsentieren Materialien, Oberflächen, Möbel und Beleuchtungskonzepte und stimmen diese gemeinsam mit dem Auftraggeber ab.
5. Ausschreibungen & Vergaben
Wir erstellen detaillierte Leistungsverzeichnisse, holen Angebote ein und unterstützen bei der Vergabe der Gewerke. Dadurch erhält der Auftraggeber Kostentransparenz und Planungssicherheit.
6. Bauzeitplan
Ein präziser Terminplan koordiniert alle Gewerke und definiert Meilensteine. Wir sorgen dafür, dass Abläufe klar strukturiert und zeitlich optimal abgestimmt sind.
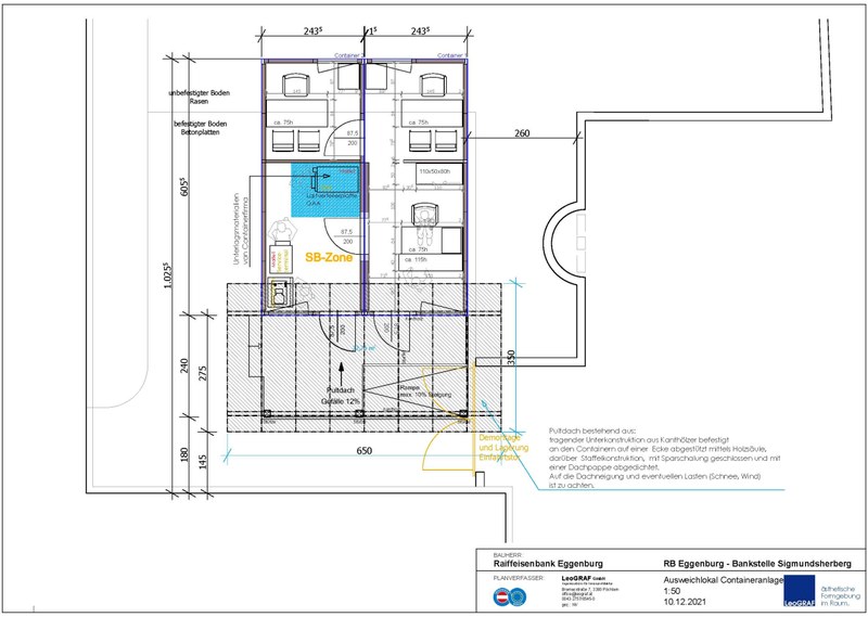
7. Übersiedeln ins Ausweichlokal
Um den laufenden Betrieb sicherzustellen, organisieren wir die Übersiedlung in ein Ausweichlokal. Dabei berücksichtigen wir technische Anforderungen, Sicherheitsaspekte und die Minimierung von Betriebsunterbrechungen.
8. Abbruch & Umbau
Nach der Räumung beginnt die bauliche Umsetzung:
3. Einreichplanung
Wir erstellen alle erforderlichen Unterlagen für Behörden und Genehmigungsverfahren. Dazu gehören Pläne, technische Nachweise und Abstimmungen mit Fachplanern. Unser Ziel: eine reibungslose und zügige Genehmigung.
4. Material- & Ausstattungspräsentation
In dieser Phase konkretisieren wir das Erscheinungsbild der Bankstelle. Wir präsentieren Materialien, Oberflächen, Möbel und Beleuchtungskonzepte und stimmen diese gemeinsam mit dem Auftraggeber ab.
5. Ausschreibungen & Vergaben
Wir erstellen detaillierte Leistungsverzeichnisse, holen Angebote ein und unterstützen bei der Vergabe der Gewerke. Dadurch erhält der Auftraggeber Kostentransparenz und Planungssicherheit.
6. Bauzeitplan
Ein präziser Terminplan koordiniert alle Gewerke und definiert Meilensteine. Wir sorgen dafür, dass Abläufe klar strukturiert und zeitlich optimal abgestimmt sind.
7. Übersiedeln ins Ausweichlokal
Um den laufenden Betrieb sicherzustellen, organisieren wir die Übersiedlung in ein Ausweichlokal. Dabei berücksichtigen wir technische Anforderungen, Sicherheitsaspekte und die Minimierung von Betriebsunterbrechungen.
8. Abbruch & Umbau
Nach der Räumung beginnt die bauliche Umsetzung:
- Abbrucharbeiten
- Rohbau- und Installationsarbeiten
- Innenausbau
- Möblierung und technische Integration
Wir koordinieren alle Gewerke und überwachen Qualität, Termine und Kosten.
9. Inbetriebnahme
Nach Abschluss der Bauarbeiten erfolgt die technische und funktionale Inbetriebnahme. Wir testen alle Systeme, begleiten die Übergabe und stellen sicher, dass die Bankstelle betriebsbereit und voll funktionsfähig ist.
10. Abrechnung & Abschluss
Zum Projektabschluss erstellen wir eine transparente Abrechnung, dokumentieren alle Leistungen und übergeben sämtliche relevanten Unterlagen. Auch nach Fertigstellung stehen wir für Fragen oder Erweiterungen zur Verfügung.
9. Inbetriebnahme
Nach Abschluss der Bauarbeiten erfolgt die technische und funktionale Inbetriebnahme. Wir testen alle Systeme, begleiten die Übergabe und stellen sicher, dass die Bankstelle betriebsbereit und voll funktionsfähig ist.
10. Abrechnung & Abschluss
Zum Projektabschluss erstellen wir eine transparente Abrechnung, dokumentieren alle Leistungen und übergeben sämtliche relevanten Unterlagen. Auch nach Fertigstellung stehen wir für Fragen oder Erweiterungen zur Verfügung.